Refunds vary by sale price, market and are subject to a minimum commission. Please get in touch and read the Refund Terms and Conditions to learn more.
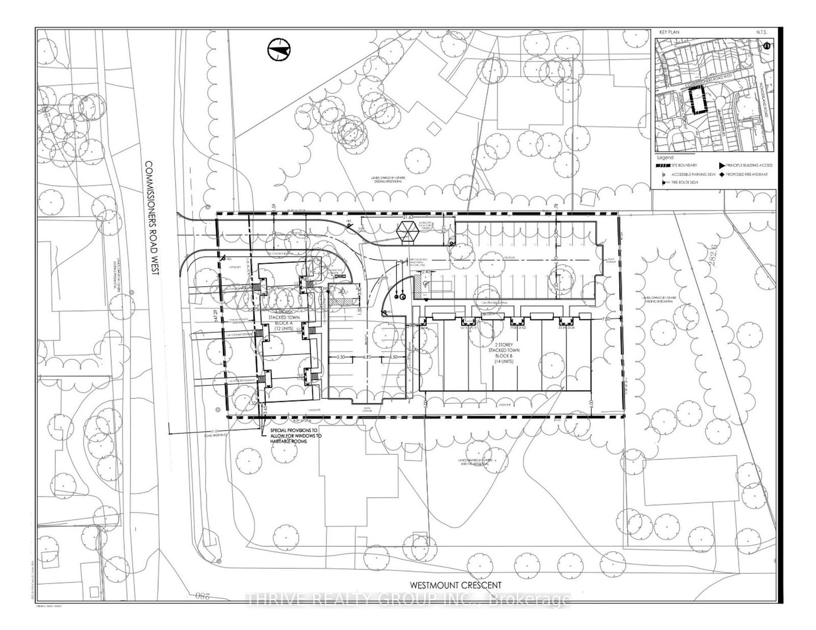
Prime Development Opportunity in Sought-After West London! Unlock the potential of this exceptional nearly 1-acre development site, perfectly positioned just steps from the vibrant intersection of Commissioners Rd West and Wonderland Road. This near shovel-ready property comes with an approved plan for a modern stacked townhome community, featuring 26 stylish units across two architecturally designed buildings. Whether you're a seasoned builder or a savvy investor, this is your chance to break ground in one of London's most desirable neighbourhoods. Surrounded by top-tier amenities, shopping, dining, and convenient transit options, this A+ location promises strong market appeal and future growth. Don't miss this rare opportunity to bring a visionary residential project to life in a high-demand area.
City: London South

| Purchase Price | $2,250,000 |
| Down Payment | $450,000 |
| Mortgage Insurance | $0 |
| Total Mortgage | $1,800,000 |
| Mortgage Payment | $11,092 |
| Property Taxes | $492 |
| Maintenance Fees | $0 |
| Monthly Payment | $11,584 |
Located at 584 Commissioners Road , this London South house is available for sale. This property was listed for $2,250,000 on Wed Mar 25 2026. It has 0 bedrooms and 0 bathrooms. The property's amenities include Public Transit, Park, School. The property includes the following rooms: .
MLS#: undefined · $2,250,000 · 0 bedroom house in London South