2 days on market
$1,200

Leased on May. 20, 2004

Listed for $1,200 on May. 19, 2004

Navy Wharf Crt
Leased

Waterfront Communities C1, Toronto

1 Bed|1 Bath|2 days on market

Home Details

Total Parking Spots
0
Driveway
null
Garage Spaces
1
Balcony
Yes
Furnished
No
Exposure
W
Lease Term
null
Move-in Date
July 15/Tba
Building Age
0-5 Years
Locker
None
Hydro Included
Yes
Heat Included
Yes
Heating
Forced Air
Water Included
Yes
Family Room
Yes
Basement
None
Fireplace
N
Air Conditioning
Central Air
Central Vaccum
No
Exterior
Concrete
Sewer
null
Property Type
Condo Apt
Style
Apartment

Listing Description

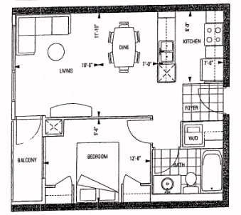
Downtown Condo, Complete Amenities, 24Hr Concierge, Steps To Ttc Skydome, Hi-Speed Internet Avail, Fabulous West View, Approx. 533 S.F. As Per Builder's Plan, One Parking Space Included
Fridge, Stove, B/I Microwave /Hood Fan, B/I D/W, Stacked Wsher/Dryr, All Elfs, Brdlm W/L, Granite Ct.

Property History

or to view this property's history
Listing DateDOMList PriceSold PriceEventMLS ID
Oct 20, 20256$2,200N/ANewC12472464
Feb 15, 202112$1,700$1,700LeasedC5115657
Aug 20, 2020102$1,850N/AExpiredC4883098
Mar 22, 200359$1,245$1,200LeasedC220685

Building Amenities

Security Guard
Security System
Indoor Pool
Recreation Room
Exercise Room
Gym

Market Trends and Insights

About Navy Wharf Crt, Toronto

Located at 81 Navy Wharf Crt Unit #707, this Toronto condo was listed for $1,200. This condo's size is < 700 Sqft. It has 1 bedroom and 1 bathroom. Views are to the West from this property. Step outside onto the open balcony. The property's amenities include Security Guard, Security System, Indoor Pool, Recreation Room, Exercise Room, Gym. The property includes the following rooms: . This property also comes with a locker. Heat, Hydro, Water are included with this property. 81 Navy Wharf Crt, Toronto is situated in the Waterfront Communities C1 neighbourhood.


MLS#: C462466 · $1,200 · 1 bedroom condo in Waterfront Communities C1, Toronto