64 days on market
$299,900

Expired on Apr. 30, 2024

Listed for $299,900 on Feb. 26, 2024

Idylewylde Pl
Expired

Fort Erie

0 Bath|64 days on market

$299,900

Expired as of Apr. 30, 2024

Listed for $299,900 on Feb 26, 2024

Or call Dwelly at: (647) 797-1133

Home Details

Taxes
$26 / month
Total Parking Spots
0
Garage Spaces
NaN
Furnished
No
Lot Size
75.00 x 100.00 Feet
Move-in Date
Flexible
Hydro Included
No
Water Included
No
Central Vaccum
No
Sewer
Sewers
Property Type
Vacant Land
Status
Expired

Listing Description

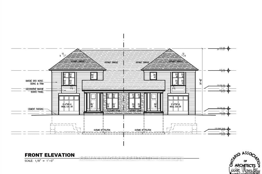
This is a vacant lot that has been rezoned to fit a semi detached dwelling. The semi detached drawings are available upon request. The semi is about 1822 sq ft per unit. The drawings include a basement with a separate entrance to accommodate an in law suite or potential rental opportunity. If you're an investor, this is a great project that can give you a return from 4 units. The location is peaceful but close to everything you need. Lake Erie is a small walk from this property and there's a grand park & community center around the corner! Within minutes to QEW, US/CA Border, Grocery stores, schools, churches, & much more!

Property History

or to view this property's history
There's no lease history for this property

Market Trends and Insights

Sold Comparables

Sold Comparables homes near Idylewylde Pl, Fort Erie

About Idylewylde Pl, Fort Erie

Located at 85 Idylewylde Pl , this Fort Erie house was listed for $299,900. This house's size is 75.00 x 100.00 Feet. It has bedrooms and 0 bathrooms. The property includes the following rooms: .


MLS#: X8093992 · $299,900 · bedroom house in Fort Erie